Description
- Character Three Bedroom Detached Cottage
- Beautifully Presented whilst retaining many Original Features
- Open Plan Dining Kitchen with Inglenook Fireplace
- Spacious Lounge and Garden Room
- Boot/Play Room, Utility, Guest WC
- Three Bedrooms, smart modern Bathroom
- Low Maintenance Garden, Hot Tub under a Timber Pergola, Off Road Parking
- Council Tax Band - C, Energy Rating - D
Retaining many original features, the home exudes charm and warmth throughout, while tasteful updates ensure it is ready for contemporary living. The inviting accommodation flows seamlessly, with well-proportioned rooms that balance period detail with stylish presentation. There are shutters to most of the windows, ceiling spotlights, beams and smart doors throughout.
To the ground floor is the open plan Dining Kitchen with an excellent range of units and integrated double oven, hob with extractor fan over, fridge and dishwasher, a Belfast sink and kitchen island - and a log burner set in a feature brick inglenook fireplace. A door from the Kitchen leads to the Boot/Play Room, the Utility and the Guest WC.
The generous Lounge also has a feature brick wall with inglenook, and French doors lead through to the light and spacious Garden Room with French doors to the garden.
An oak staircase with a glass balustrade lead up to the first floor where there are two Double Bedrooms, a generous Single Bedroom and a smart Bathroom with both a walk-in shower and a bath tub.
Outside, the property boasts a low-maintenance garden designed for relaxation and enjoyment. A spacious garden shed provides excellent storage, while a hot tub set beneath a timber pergola creates a private retreat for unwinding at the end of the day. Practicality is also well catered for, with the benefit of off-road parking.
This delightful cottage combines convenience, character, and comfort, making it an ideal choice for families or anyone seeking a charming home in a vibrant community. To arrange your viewing, please call the team at our Market Drayton office.
LOCATION Hodnet is a highly sought-after North Shropshire village which benefits from a Primary School, Village Store with Post Office, Doctors' Surgery, Church and The Bear - a popular Pub/Hotel.
The nearby towns of Market Drayton and Newport offer a wide variety of amenities such as Schools, Specialist and High Street Shops, Supermarkets and Health and Leisure Facilities. The larger towns of Shrewsbury, Telford and Newcastle-under-Lyme are all within commutable distance of Hodnet.
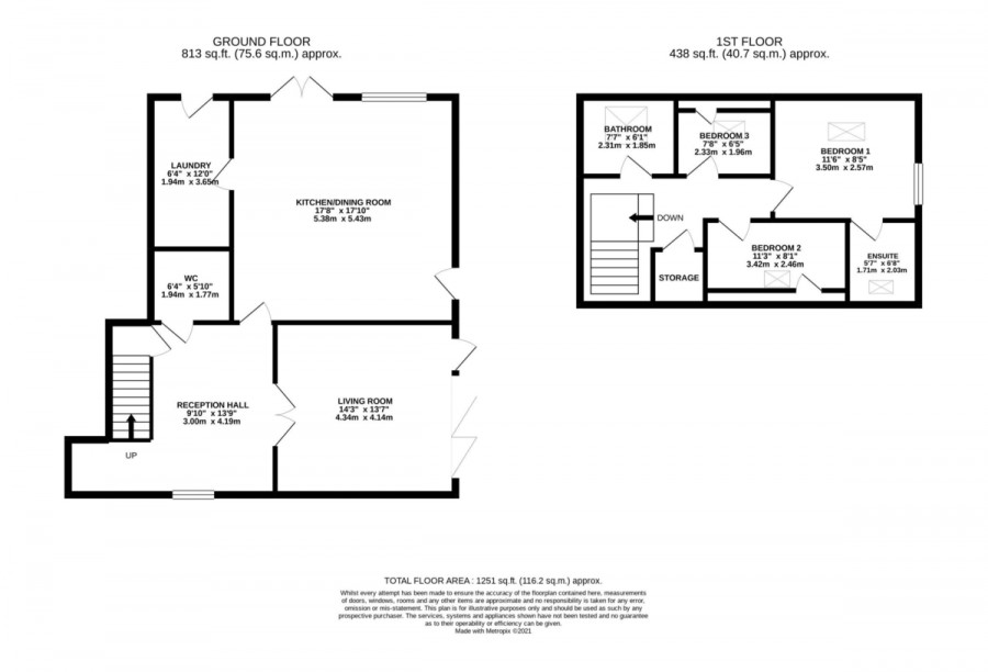
ACCOMMODATION
DINING KITCHEN 17' 7" x 17' 10" (5.36m x 5.44m)
BOOT/PLAY ROOM 7' 7" x 8' 4" (2.31m x 2.54m)
UTILITY 5' 11" x 6' 2" (1.8m x 1.88m)
GUEST WC 6' 2" x 3' 0" (1.88m x 0.91m)
LOUNGE 17' 11" x 10' 4" (5.46m x 3.15m)
GARDEN ROOM 15' 3" x 10' 11" (4.65m x 3.33m)
FIRST FLOOR LANDING
BEDROOM ONE 13' 9" x 10' 11" max (4.19m x 3.33m)
BEDROOM TWO 12' 0" x 9' 2" max (3.66m x 2.79m)
BEDROOM THREE 10' 4" x 6' 8" (3.15m x 2.03m)
BATHROOM 8' 4" x 9' 7" (2.54m x 2.92m)
TO VIEW THIS PROPERTY By arrangement with the Agents Office at Tower House, Maer Lane, Market Drayton, TF9 3SH
Tel: 01630 653641 or email: marketdrayton@barbers-online.co.uk
DIRECTIONS From Market Drayton take the A53 to Tern Hill, going straight over Tern Hill roundabout and at the first roundabout turn right on Shrewsbury Road to Hodnet. At the mini roundabout turn right on Station Road and the property is on your left and can be identified by our For Sale sign.
SERVICES We are advised that LPG central heating and mains water, drainage and electricity are available. Barbers have not tested any apparatus, equipment, fittings etc or services to this property, so cannot confirm that they are in working order or fit for purpose. A buyer is recommended to obtain confirmation from their Surveyor or Solicitor. For broadband and mobile supply and coverage buyers are advised to visit the Ofcom mobile and broadband checker website. https://checker.ofcom.org.uk/
LOCAL AUTHORITY Shropshire Council, Shirehall, Shrewsbury, SY2 6ND. Tel: 0345 678 9002
COUNCIL TAX BAND - C
ENERGY PROFICIENCY RATING - D The full Energy Performance Certificate (EPC) is available for you to download by clicking the link on this listing or by using the postcode to search at: www.gov.uk/find-energy-certificate
TENURE We are advised that the property is Freehold and this will be confirmed by the Vendors Solicitor during the Pre- Contract Enquiries. Vacant possession upon completion.
METHOD OF SALE For Sale by Private Treaty.
IMPORANT INFORMATION FLOOR PLAN: This floor plan is not to scale - please use it as a guideline to layout only. The measurements, contents and positioning are approximations only and provided as a guidance tool and not an exact replication of the property.
AML REGULATIONS: We are required by law to conduct Anti-Money Laundering checks on all those buying a property. The initial checks are carried out on our behalf by MoveButler who will contact you once you have had an offer accepted on a property. The cost of these checks is £30 (incl. VAT) per buyer, which covers the cost of obtaining relevant data and any manual checks and monitoring which might be required. This fee will need to be paid by you, directly to MoveButler, ahead of us issuing a memorandum of sale, and is non-refundable.
BARBERS COPYRIGHT: Unless we agree otherwise with you in writing, we hold the copyright on all photographic and video marketing material used to market this property. These should not be reproduced by any third party without our express consent. Furthermore, we reserve the right to use these for marketing initiatives to promote the property or the Company. We may use various options for marketing including all social media and mailing campaigns, all designed to help with the sale/rental of your property.
PROPERTY INFORMATION: We believe this information to be accurate, but it cannot be guaranteed. The fixtures, fittings, appliances and mains services have not been tested. If there is any point which is of particular importance, please obtain professional confirmation. All measurements quoted are approximate. These particulars do not constitute a contract or part of a contract.
PROPERTY VALUATION SERVICE: If you're looking to sell your property, our highly experienced Valuers can give you a No Obligation, Free-of-Charge Sales Valuation on your property. During this appointment we will discuss sold prices of similar properties, comparable properties currently on the market and the property market conditions - helping us to make a marketing plan to suit your needs. Call us on 01630 653641 to arrange an appointment.
RESIDENTIAL LETTING SERVICE
Barbers are a long-established firm in the field of Residential Lettings and Property Management. Our Award-Winning team have a wealth of experience and knowledge, and we have a dedicated Property Management team responsible for managing over 800 properties in the local area. If you are interested in buying this or any other property as an investment, please contact us for more information on the services we can offer.
INDEPENDENT MORTGAGE ADVICE: To be sure that you have the most up-to-date information on suitable Mortgages available to you, we can arrange for you to meet with our Independent Mortgage Advisor from the Mortgage Advice Bureau. Please call our Market Drayton office for an appointment.
MD38130121125
Floorplans
Call Market Drayton Branch
Market Drayton Branch
Tower House, Maer Lane, Market Drayton, Shropshire, TF9 3SH
Opening Hours
Monday to Friday: 8.45am to 5.30pm
Saturday: 9.00am to 4.00pm
Market your property
at Barbers
Choose a market valuation for your property today.