Description
- Lovely Detached Family Home
- Four Bedrooms
- Entrance Hall, Ground Floor W.C.
- Kitchen Dining Room
- Lounge with Bay Window
- En-Suite Shower Room and Family Bathroom
- Garage and Driveway Parking
- Private, Well Maintained Rear Gardens with Decking and Pergola
- Council Tax Band D
- EPC Rating - B
Offering generous living space including a double aspect Lounge as well as a separate Kitchen/Dining Room, there is also a handy Ground Floor WC. Upstairs, there are Four Bedrooms with the Main Bedroom having an En-Suite, and Two further Double Bedrooms as well as a Fourth Bedroom that could be used as a Home Office. There is also a modern Family Bathroom.
Externally, an Enclosed Rear Garden boasts a Decked Area with Pergola, and there is a useful Garage with Storage in the Eaves. There is also Driveway Parking for Two Vehicles.
LOCATION The property is just from Newport's busy High Street, with its mix of shops, boutiques, cafes, pubs and a Victorian indoor market - and is within the catchment area of Newport's highly regarded Primary, High and Grammar Schools.
A wider selection of shops, amenities and employment opportunities are available in Telford, Stafford and Shrewsbury - and the excellent rail connections from Telford and Stafford mean Birmingham and Manchester are in commutable distance.
ACCOMMODATION
The property is approached via a small path which leads to:
CANOPY PORCH With a composite front door with outside light and this leads to:
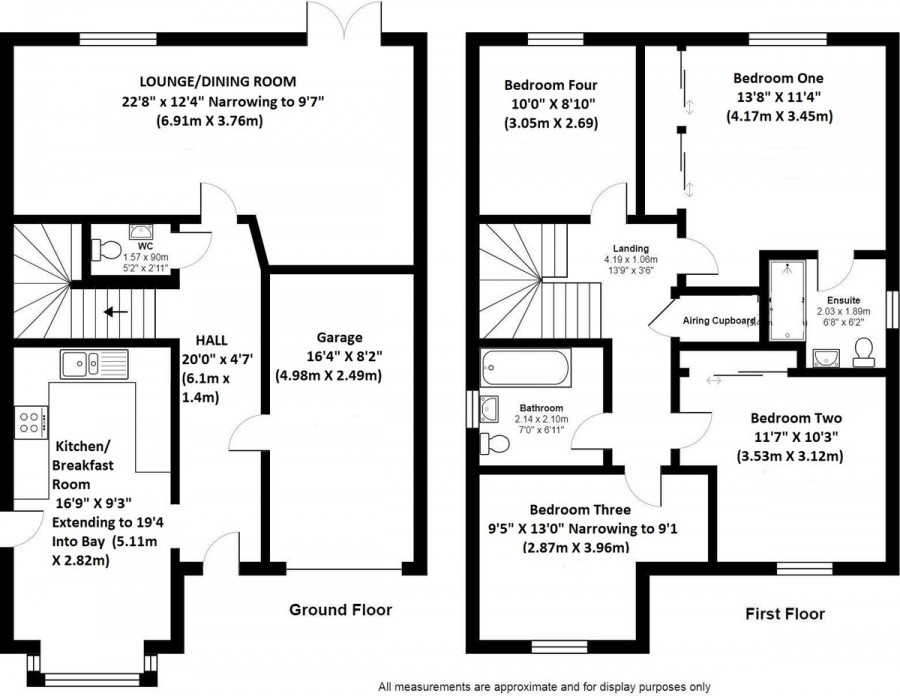
ENTRANCE HALL With radiator and door off to:
GROUND FLOOR W.C. With low level W.C., pedestal wash hand basin, tiled splash back, tiled floor and radiator and frosted window.
Further door off the Hallway leads to:
KITCHEN DINING ROOM 18' 2" x 12' 3 Max" (5.54m x 3.73m) With a range of wall and base mounted units in a gloss white colour with a chrome finish handles this is topped by a wood effect laminate worktop with matching up stand, Hotpoint four ring induction hob with stainless steel splash back and matching Hotpoint stainless steel extractor hood over, integrated Hotpoint double oven, integrated fridge freezer, dishwasher and washing machine, one and a half bowl stainless steel sink with chrome mixer tap, ceiling lighting, two radiator and further window in the dining area, grey wood effect laminate flooring throughout.
Further door off the Hallway leads to:
LOUNGE 14' 0" x 18' 3" (4.27m x 5.56m) With bay window with radiator under, further radiator, storage cupboard and double glazed doors leading out to the rear patio and garden.
Stairs rise to:
FIRST FLOOR LANDING With door off leading to airing cupboard, smoke alarm, radiator and loft hatch. Further door off leading to:
BEDROOM ONE 12' 1 Max" x 13' 2 Max" (3.68m x 4.01m) With double aspect with radiator, double built in wardrobes and door off to:
EN-SUITE SHOWER ROOM With glazed walk in shower cubicle with thermostatic mixer shower, low level W.C., wall mounted wash hand basin, half tiled walls and splash backs, chrome heated towel rail, frosted window, spotlights to the ceiling, extractor fan and grey tiled flooring.
BEDROOM TWO 11' 1" x 9' 8" (3.38m x 2.95m) With double aspect and radiator.
BEDROOM THREE 11' 1" x 8' 4" (3.38m x 2.54m) With window and radiator.
BEDROOM FOUR (CURRENTLY USED AS A STUDY) 8' 3" x 7' 9" (2.51m x 2.36m) With window and radiator.
FAMILY BATHROOM With white panel bath with thermostatic mixer shower, low level W.C., wall mounted wash hand basin, half tiled walls, splash back, chrome heated towel rail, extractor fan, spotlights to the ceiling and frosted window.
EXTERNALLY The rear garden can be accessed via the double doors from the Lounge or via the Garage or timber side gate. Decked area with pergola which leads to lawned area which is bordered by gravelled beds and further concrete patio area. The garden is bordered on one side by timber fencing and the remainder by brick wall and outside tap.
There is driveway parking for two vehicles to the side of the property.
GARAGE 9' 0" x 17' 9" (2.74m x 5.41m) With electric light and power, eaves storage and metal up and over door.
TO VIEW THIS PROPERTY To view this property, please contact our Newport Office, 30 High Street, Newport, TF10 7AQ or call us on 01952 820239. Email: Newport@barbers-online.co.uk
DIRECTIONS From Newport High Street head towards Lower Bar keeping the Church on your right, and go straight over the mini roundabout with the Shell garage on your left. Bear right on the B5062/Edgmond Road, then left into Stone Bridge - follow the road round to your right and you'll see the property after about 300 yards. It is located on the right hand side on the corner.
SERVICE CHARGE We confirm there is a service charge on the property which is currently £317.00 per annum, payable to First Port Management Company. This is for the upkeep of the communal areas.
SERVICES We are advised that all mains services are available. Barbers have not tested any apparatus, equipment, fittings etc or services to this property, so cannot confirm that they are in working order or fit for purpose. A buyer is recommended to obtain confirmation from their Surveyor or Solicitor. For broadband and mobile supply and coverage buyers are advised to visit the Ofcom mobile and broadband checker website. https://checker.ofcom.org.uk/
LOCAL AUTHORITY Telford & Wrekin Council, Southwater One, Southwater Square, Southwater Way, Telford, TF3 4JG. Tel: 01952 380000
EPC RATING - B-84 The full energy performance certificate (EPC) is available for this property upon request.
PROPERTY INFORMATION We believe this information to be accurate, but it cannot be guaranteed. The fixtures, fittings, appliances and mains services have not been tested. If there is any point which is of particular importance please obtain professional confirmation. All measurements quoted are approximate. These particulars do not constitute a contract or part of a contract.
AML REGULATIONS We are required by law to conduct anti-money laundering checks on all those buying a property. Whilst we retain responsibility for ensuring checks and any ongoing monitoring are carried out correctly, the initial checks are carried out on our behalf by Movebutler who will contact you once you have had an offer accepted on a property you wish to buy. The cost of these checks is £30 (incl. VAT) per buyer, which covers the cost of obtaining relevant data and any manual checks and monitoring which might be required. This fee will need to be paid by you in advance, ahead of us issuing a memorandum of sale, directly to Movebutler, and is non-refundable.
TENURE We are advised that the property is Freehold and this will be confirmed by the Vendors Solicitor during the Pre- Contract Enquiries. Vacant possession upon completion.
METHOD OF SALE For Sale by Private Treaty.
NE3884
Floorplans
Newport Branch
Newport Branch
30 High Street, Newport, Shropshire, TF10 7AQ
Opening Hours
Monday to Friday: 8.45am to 5.30pm
Saturday: 9.00am to 4.00pm
Market your property
at Barbers
Choose a market valuation for your property today.