Description
- End Terraced House
- Three Bedrooms with wardrobe storage
- Kitchen and Lounge/Dining Room
- Enclosed Rear Garden
- Gas Central Heating, Allocated Parking
- Rent £895 P.C.M
- Deposit £1,032
- Holding Deposit £150
- Council Tax Band: A
- E.P.C Rating C71
LOCATION Situated in the semi rural location of Buntingsdale which is on the edge of the established residential area of Tern Hill, which has local convenience stores and sports centre along with the Army Barracks and RAF base. Market Drayton is within 5 miles and offers a more comprehensive range of amenities including schools, specialist and high street shops, supermarkets, restaurants and health and leisure facilities.
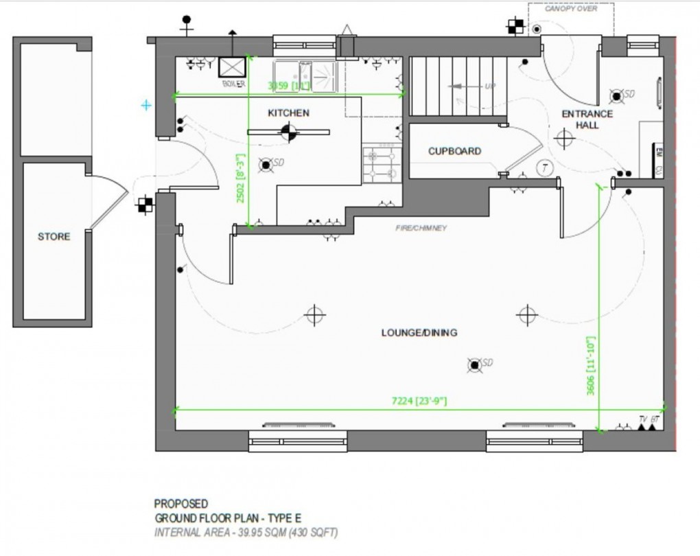
ACCOMMODATION
ENTRANCE HALL With useful under stairs storage cupboard
LOUNGE/DINING ROOM 23' 9" x 11' 10" (7.24m x 3.61m)
KITCHEN 11' x 8' 3" (3.35m x 2.51m) Having a range of modern base and wall units, cooker, side door to the garden
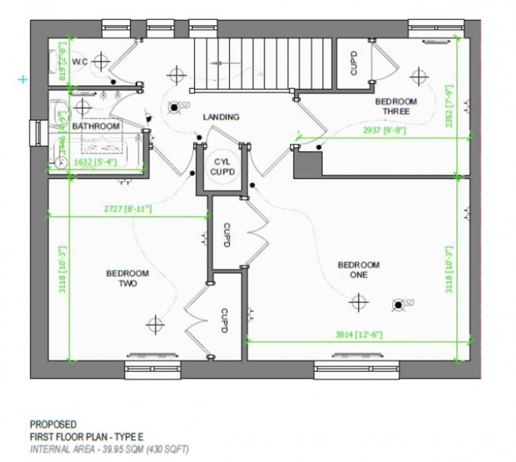
ON THE FIRST FLOOR
BEDROOM ONE 12' 6" x 10' 3" (3.81m x 3.12m) With built in wardrobe cupboard
BEDROOM TWO 10' 3" x 8' 11" (3.12m x 2.72m) With built in wardrobe cupboards
BEDROOM THREE 9' 8" x 7' 8" (2.95m x 2.34m) With built in wardrobe cupboard
BATHROOM Having a white suite of wc, sink and bath with shower fitted over and separate wc
OUTSIDE There is one allocated parking space with the property - please note this is not directly outside the house.
It also benefits from a good sized enclosed rear garden laid mainly to lawn. Useful Brick built storage
RENT £895 P.C.M
DEPOSIT £1,032
ZERO DEPOSIT OPTION SCHEME AVAILABLE - Please contact us for more information on this scheme
HOLDING DEPOSIT n/a
TERM Assured Shorthold Tenancy term to be agreed, but it will be for a minimum fixed period of 6 months
ENERGY PERFORMANCE CERTIFICATE A copy of the energy performance certificate will be available upon request and will be issued prior to the commencement of the tenancy.
LOCAL AUTHORITY Shropshire Council, PO BOX 4749, Shrewsbury, Shropshire, SY1 9GH
VIEWING By arrangement with the Agents Office at Tower House, Maer Lane, Market Drayton, TF9 3SH
Tel: 01630 652 314 or email: marketdrayton@barbers-online.co.uk
A request for a viewing does not guarantee a viewing at the property, we will initially provide a video tour of the property, with us then taking landlords instructions on physical viewings.
A viewing appointment is not a formal offer of a tenancy and any tenancy is subject to landlord approval, application, referencing and contract. A property will be withdrawn from the open market only once a holding deposit has been paid and therefore other viewings can continue to take place at any time without prior notice. Barbers are not liable for any costs you might incur, and we recommend that you thoroughly research the area before travelling to any viewing.
SERVICES We are advised that mains electricity, gas, drainage and water are available. For broadband and mobile supply and coverage buyers are advised to visit the Ofcom mobile and broadband checker website. https://checker.ofcom.org.uk/
PETS Pets Will Be Considered.at an additional charge at 1 pet - £25 per calendar month and 2-3 pets an additional £35 per calendar month.
RIGHT TO RENT Tenants MUST provide us with identification documents to confirm their right to rent in the UK. To avoid delays in the letting process please ensure you provide the required documents to us prior to signing a tenancy agreement. We may use an online service provider to also confirm your right to rent. A list of acceptable ID documents is available upon request
CREDIT CHECK INTERVIEW All parties interested in the above property will be required to attend an interview, whereupon a credit check will be applied for
COPYRIGHT & SOCIAL MEDIA Unless we agree otherwise with you in writing, we hold the copyright on all photographic and video marketing material used to market this property and these should not be reproduced by any third party without our express consent. Furthermore, we reserve the right to use these for marketing initiatives in order to promote the property or the Company. We may use various options for marketing including all social media and mailing campaigns, all designed to help with the sale/rental of your property.
PLEASE NOTE PLEASE NOTE BARBERS ACT AS A LOCAL AGENT AND ADVERTISE THIS PROPERTY ONLY, ON BEHALF OF THE LANDLORDS.
IF AN APPLICATION IS MADE, YOUR DETAILS WILL BE PASSED ONTO THE MANAGING AGENT FOR DIRECT CONTACT.
RENT PAYMENT INFORMATION Rent and Deposit
All rents are paid in advance, directly to Touchstone, and are due on the 1st of the month. Where a
tenant moves in midway through the month, the initial rent will be calculated accordingly.
- Up to, and including the 18th - the month's rent is pro-rated from the commencement date to
the end of the month and is payable in advance.
- After 19th - the month's rent is prorated from the commencement date to the end of the month
together with the second month's rent and is payable in advance.
Floorplans
EPC
Download Letting Viewing Request Form
Call Market Drayton Branch
Market Drayton Branch
Tower House, Maer Lane, Market Drayton, Shropshire, TF9 3SH
Opening Hours
Monday to Friday: 8.45am to 5.30pm
Saturday: 9.00am to 4.00pm
Market your property
at Barbers
Choose a market valuation for your property today.