Description
- Modernised First Floor Apartment
- One Bedroom, Shower Room
- Open Plan Lounge and Kitchen
- Allocated Car Parking Space
- Town Centre Location
- Rent £545 p.c.m
- Deposit £628
- Holding Deposit £125
- Council Tax Band: A
- EPC Rating: D-62
LOCATION Conveniently located in the centre of Market Drayton above a retail premises. The area is a popular North Shropshire market town on the Staffordshire/Cheshire borders. It is on the River Tern, between Shrewsbury and Stoke on Trent and was formerly known as Drayton in Hales and is listed in the Domesday Book. In 1245 King Henry III granted a charter for the weekly Wednesday market, giving the town its current title. The market is still held every Wednesday. The Shropshire Union Canal runs through the town and Market Drayton offers a wide variety of amenities such as schools, specialist and high street shops, supermarkets and health and leisure facilities. The larger centres of Newcastle under Lyme, The Potteries, Crewe, Stafford, Telford and Shrewsbury are between approximately 15 to 26 miles away.
THE ACCOMMODATION
COMMUNAL ENTRANCE HALLWAY With door to apartment and stairs to the first floor. The communal entrance is for access only and not for storage
LANDING AREA
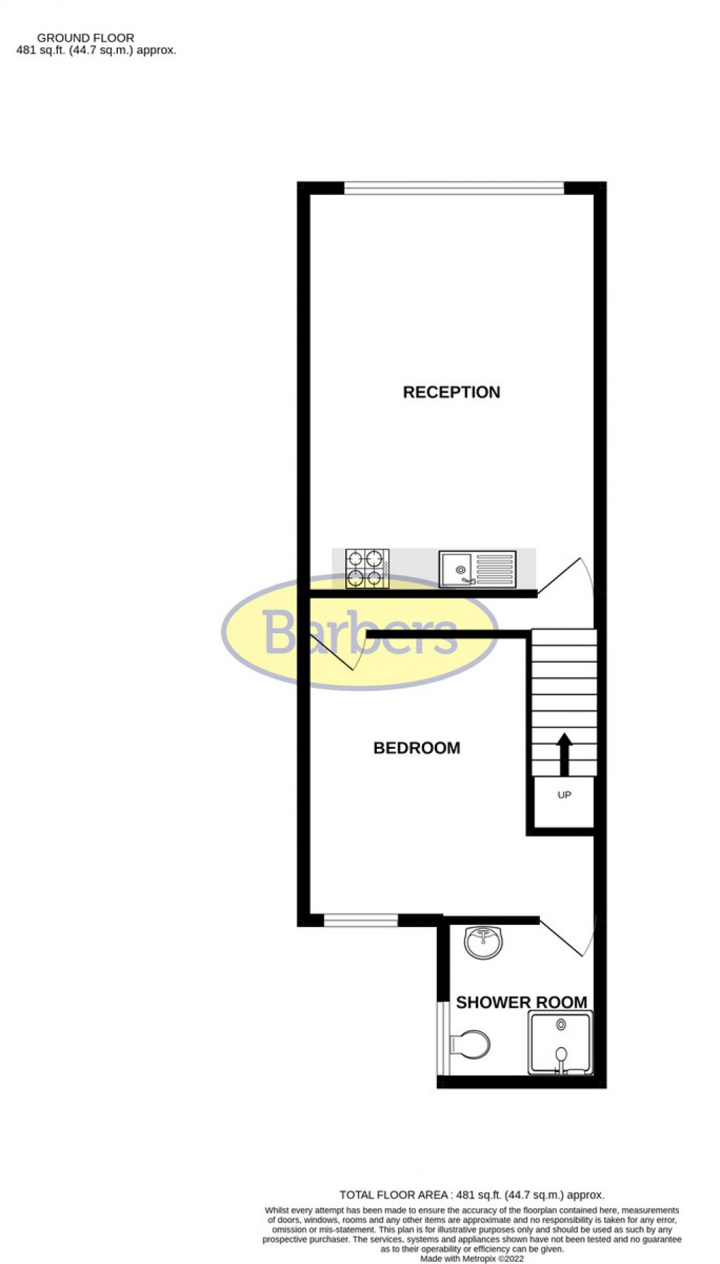
OPEN PLAN LOUNGE AND KITCHEN AREA 17' 8" x 13' 5" (5.38m x 4.09m) Having a range of base and wall units with complementary work surfaces and splashbacks. Integrated electric oven and hob with extractor hood over. Recess for a fridge freezer and plumbing for a washing machine. Single drainer stainless steel sink unit with mixer tap.
BEDROOM 1 14' 2" x 12' 9" (4.32m x 3.89m) To the rear of the property with door to:
SHOWER ROOM 7' x 6' 9" (2.13m x 2.06m) A refitted shower room that incorporates a shower cubicle, wash hand basin with vanity unit below and low coupled WC. Heated towel rail.
OUTSIDE Allocated car parking which is accessed off Queen Street car park in Market Drayton.
DIRECTIONS SAT NAV: TF9 1HX - What3words: homework,volunteered.erupt
From our office turn left onto Maer Lane and left at the junction into Cheshire Street. After a short distance continue straight over the mini island and follow this road down to Queens Street Car Park. The entrance to the parking area to the property is on the right hand side off the car park.
RENT £545 p.c.m
DEPOSIT £628
HOLDING DEPOSIT ONE WEEKS RENT - This is to reserve a property, please note: This will be withheld if any relevant person (including any guarantor(s)) withdraw from the tenancy, fail a Right to Rent check, provide materially significant false or misleading information, or fail to sign their tenancy agreement (and / or Deed of Guarantee) within 15 calendar days (or other deadline for agreement as mutually agreed in writing)
PLEASE NOTE:
When you request a viewing of a property we will require certain pieces of personal information, in order to provide a professional service to you and our client. Once you apply for a tenancy you must complete the tenancy application process, this application requires you to give personal information which will be provided to credit agencies who carry out credit and referencing checks and supply us with a report on your suitability as a tenant. We will also contact your supplied references for additional information. In completing the application, you agree that your information can be passed to them for this purpose.
We will not share this information with any third party other than our client, without your consent, unless you make an application for a tenancy.
More information on how we hold and process your data is available on our website, www.barbers-online.co.uk
TERM Assured Shorthold Tenancy term to be agreed, but it will be for a minimum fixed period of 12 months
ENERGY PERFORMANCE CERTIFICATE A copy of the energy performance certificate will be available upon request and will be issued prior to the commencement of the tenancy.
LOCAL AUTHORITY Shropshire Council, PO BOX 4749, Shrewsbury, Shropshire, SY1 9GH
VIEWING By arrangement with the Agents Office at Tower House, Maer Lane, Market Drayton, TF9 3SH
Tel: 01630 652 314 or email: marketdrayton@barbers-online.co.uk
A request for a viewing does not guarantee a viewing at the property, we will initially provide a video tour of the property, with us then taking landlords instructions on physical viewings.
A viewing appointment is not a formal offer of a tenancy and any tenancy is subject to landlord approval, application, referencing and contract. A property will be withdrawn from the open market only once a holding deposit has been paid and therefore other viewings can continue to take place at any time without prior notice. Barbers are not liable for any costs you might incur, and we recommend that you thoroughly research the area before travelling to any viewing. Please note viewings are done at your own risk and we accept no liability for loss or injury whilst on the premises.
PROPERTY INFORMATION We believe this information to be accurate, but it cannot be guaranteed. If there is any point, which is of particular importance we will attempt to assist. All measurements quoted are approximate. Any discussions regarding a potential tenancy are subject to contract.
SERVICES We are advised that mains electricity, drainage and water are available. For broadband and mobile supply and coverage buyers are advised to visit the Ofcom mobile and broadband checker website. https://checker.ofcom.org.uk/
RIGHT TO RENT Tenants MUST provide us with identification documents to confirm their right to rent in the UK. To avoid delays in the letting process please ensure you provide the required documents to us prior to signing a tenancy agreement. We may use an online service provider to also confirm your right to rent. A list of acceptable ID documents is available upon request
CREDIT CHECK INTERVIEW All parties interested in the above property will be required to attend an interview, whereupon a credit check will be applied for
COPYRIGHT AND SOCIAL MEDIA Unless we agree otherwise with you in writing, we hold the copyright on all photographic and video marketing material used to market this property and these should not be reproduced by any third party without our express consent. Furthermore, we reserve the right to use these for marketing initiatives in order to promote the property or the Company. We may use various options for marketing including all social media and mailing campaigns, all designed to help with the sale/rental of your property.
Floorplans
EPC
Download Letting Viewing Request Form
Call Market Drayton Branch
Market Drayton Branch
Tower House, Maer Lane, Market Drayton, Shropshire, TF9 3SH
Opening Hours
Monday to Friday: 8.45am to 5.30pm
Saturday: 9.00am to 4.00pm
Market your property
at Barbers
Choose a market valuation for your property today.